Blog of Axel Lane

There are 22 blog entries within the category of Axel Lane

Structural Diagrams of Inverted Truss Design
July 21st, 2011 | View Post
Although still very technical (as opposed to aesthetic) in nature, I was pretty excited to receive these structural truss CAD images from our structural engineer, Tsen Structural. The top left picture below shows the actual truss positions as they will sit over the foundation footprint. In all, there will be nine ( 9 ) 38? long inverted trusses to support the entire roof system. Between each of the trusses will be a system of steel cable wire purlins. The four corners of the building will also have cross bracing purlins.


The 9 trusses over the footprint


A double inverted truss with tension rods


A single inverted truss with tension rods


Cross braces found in the building corners

Preliminary Modeling
July 19th, 2011 | View Post

Lenticular Trusses at the Raleigh, NC airport
Below are two models (front and rear view) of what the current Axel Warehouse is intended to look like. There is certainly not any granular detail of the actual office space(s), but the shell is pretty easy to visualize. Although I have been looking forward to using the bow-truss system (as described in an older post), it looks like we are now going to use an inverted triangular truss. The system will basically consist of steel beams that lie flat across the roofline. Each of them will have a cylindrical steel column extending down from the middle, with steel tension rods spawning across both sides. I was immediately sold on these after Matt Catterall showed me a picture of them from the Detroit Airport (I am a huge fan of most modern airport architecture).

I had actually come across the same type of trusses back in March of 2011 at the Raleigh/Durham airport in North Carolina. I was in absolute awe of the way they had implemented them there, an amazing combination of wooden beams with steel supports and tension rods. Admittedly our system will not be nearly as impressive, but the geometry of them is still very appealing. The architects of this airport say that it is a type of Lenticular Truss system. A snapshot of those trusses can be found to the top right.


Shell view from the front (SW corner)


Shell view from the rear (NE corner)



The above models were created by Mary Franzosa (a Cotera+Reed employee) with an architectural program called Rhinoceros. I’ve never actually used the program myself, but seems like a considerably more intricate modeling version of Google Sketchup. From what I could gather, there is considerably more attention paid to the layering capabilities. I believe as we get more granular with the interior CAD development, that we’ll be able to produce more and more intricate models.
Architectural Design Plans (First Pass)
July 6th, 2011 | View Post
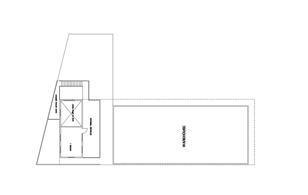
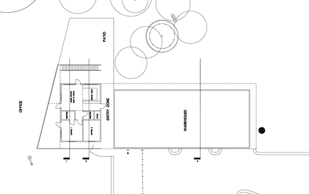
Cotera+Reed has been busy working on the various floorplans and elevations to the Axel Warehouse. The current thinking is to have the interior offices set back from the remainder of the warehouse and steel building walls. This should create a pretty interesting architectural overhang all around the perimeter of the offices while providing much needed shade and privacy from the western side of the property (the street-side).

The shell of the building will make somewhat of a ‘hat’ over the entire bow-string truss system. Tsen Structural is currently working on the structural engineering needs so that we can identify just how many trusses will be required and what type of load(s) they will be able to sustain.


The westerly elevation


A proposed first floor layout


A proposed second floor layout

Grading Plan (Phase I)
July 1st, 2011 | View Post
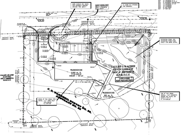
A grading plan is basically a look at how the topographical contours of the property will need to be shaped. This process will happen before and during development and is required for commercial design standards.

There is definitely some general good that comes from re-shaping the land as it would be undesirable to have water collect around the sides of the building. Unfortunately due to the nature of commercial design standards in Austin, you can also see that the entire NW corner of the property (top right in the picture) will be graded roughly a 2 feet below the rest of the property to serve as a water retention pond in heavy rains.

Also per city requirements, should we exceed 20% of the total land cover with impervious cover, we would also be required to create a water quality pond. This process can be considerably expensive given the engineering costs involved (perhaps an additional $20,000+). Fortunately we have avoided this process thus far.


Civil Engineering Plans Submitted
June 15th, 2011 | View Post
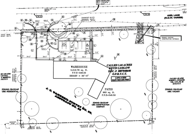
The project is finally moving along to the City of Austin. Our civil engineering firm, Nobel Surveying and Engineering Works, LLC, has submitted the first of several plans off to the City of Austin. The plans submitted include the current site-plan layout as seen to the right.

To those not familiar with this level of development planning, a site-plan is essentially an architectural view of the entire property layout from a birds-eye point of view. It includes the footprint of the building, driveways, parking lots, sidewalks, topographical information, ingress and egress, electrical hookups, and etc. It does not detail what the building or surroundings will look like in any way, but rather details how things will function on the property.

It is also, incidentally, a very expensive undertaking. Although there is SOME good in the process, I find the majority of it to be time-consuming bureaucracy-gone-wild. Just to give an idea, not a few thousand dollars, many tens of thousands of dollars are required to fulfill all of the city’s requirements. Since you know, most small businesses have that kind of cash on the side.


The official site plan submitted to the City of Austin

Water and Wastewater Service Extension Approval
June 8th, 2011 | View Post
This probably doesn't sound that exciting to most people, but I'm happy to announce that we were approved for our water / wastewater extension today from the City of Austin. Basically this means that we'll be permitted to tap into the city's water and wastewater pipes for the property.

There is actually an 8" water main right in front of the property, so that was never really a concern. However, we have needed a sewer hookup. Of course, what's missing from these forms are the fact that we'll have to pay for most, if not all of this. It might sound simple, but that entails hiring a crew to dig up a city street, lay the pipes, tap into the existing city lines, put the street back together, pave the street, and make sure that everything is back how it should be.


Public documents


More public documents